Проектирование столовых
Грамотно спроектированная раздаточная линия поможет избежать больших очередей и накормить максимальное число посетителей, а качественная кухня позволит поварам готовить в больших объемах вкусную и полезную пищу.
Специалисты Торгового Дизайна помогут:
- осуществить подбор оборудования для кухни и раздаточной линии
- разработать технологический проект вашей столовой
- доставить оборудование и смонтировать его в точно оговоренный срок
- обучить сотрудников продуктивной работе на оборудовании
- провести гарантийное обслуживание и ответить на все интересующие вопросы
Наши специалисты комплексно
подойдут к вашему проекту
- спроектируют столовую с подводом точек воды и электричества
- составят список оборудования, подходящего по формату, площади и проходимости
- доставят, а также смонтируют и осуществят пуско-наладочные работы
- обучат ваших сотрудников работе на оборудовании в столовой
- составят план гарантийного и постгарантийного обслуживания

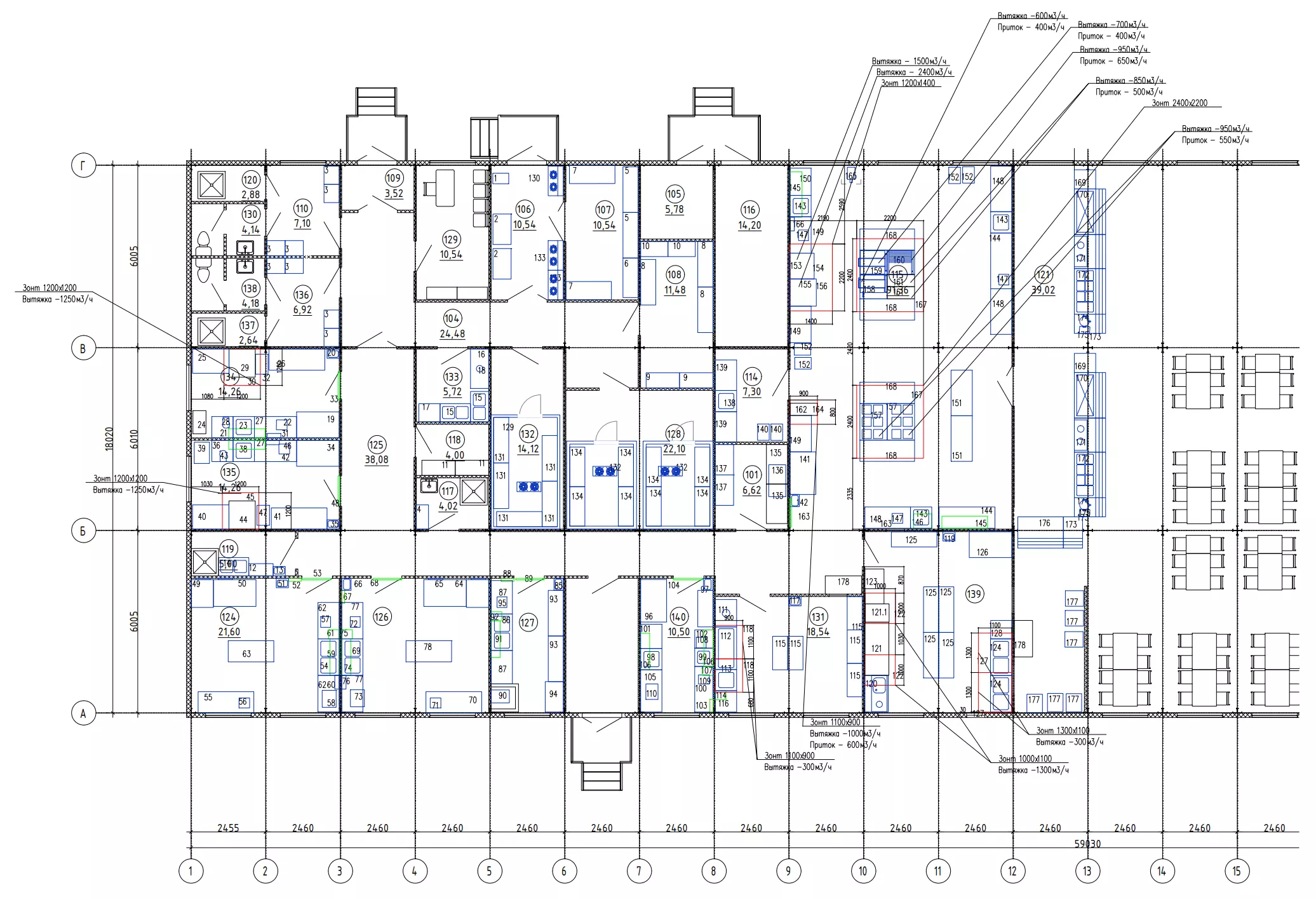
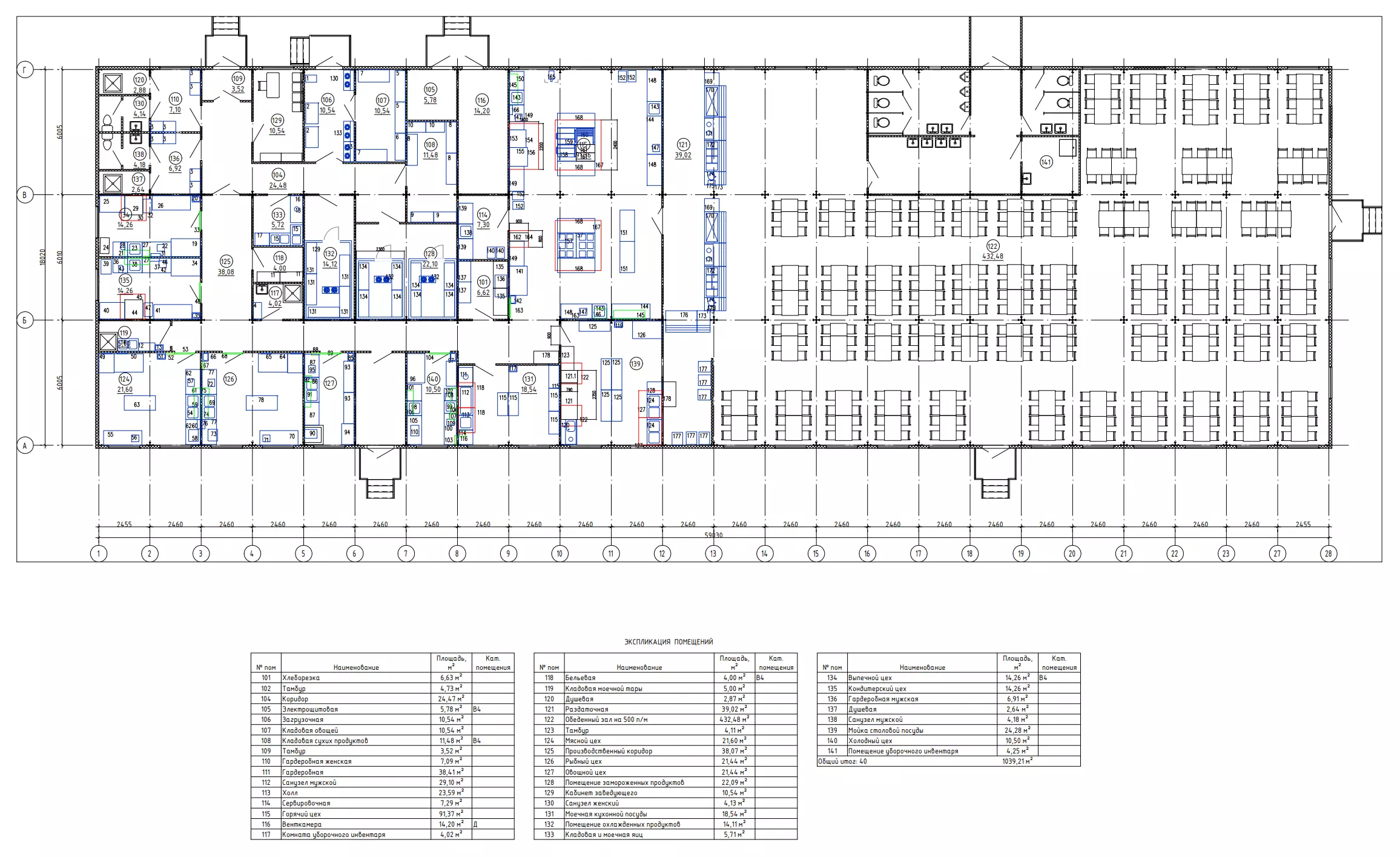
Пример технологического проекта
Преимущества работы с нами
Как нас найти
Проектирование столовых
Содержание
- Введение
- Этапы проектирования столовой
- Особенности проектирования столовой
- Модернизация столовой
- Эффективная столовая — от идеи до запуска
Введение
Компания «Торговый Дизайн», имея многолетний опыт в комплексном оснащении предприятий общественного питания, готова предоставить полный спектр услуг по проектированию столовой как отдельного заведения, так и на предприятиях любой площади и для любого количества человек под ключ. Успешное предприятие общественного питания начинается с качественного проекта кафе столовой, и именно этот этап определяет будущее эффективное функционирование столовой.

Проектирование — это первоначальный и одновременно ключевой этап, на котором строится основа для успешного бизнеса в области общественного питания.
Этапы проектирования столовой
- Анализ и сбор информации. Мы начинаем с внимательного анализа потребностей и целей заказчика. Это включает в себя обсуждение предпочтений, бюджета, числа посадочных мест и особенностей помещения.
- Разработка технического задания. Мы определяем технические требования и желаемый функциональный состав столовой. Наша команда инженеров и дизайнеров подготовит схему системы, включая холодный цех, горячий, мясо-рыбный и другие производственные цеха, а также обеспечит соблюдение всех норм и стандартов в области безопасности и санитарии. Техническое задание и проектное решение будут разработаны с учетом пожеланий заказчика и требований конкретного предприятия по оснащению.
- Планировка помещения. Специалисты отдела проектирования разрабатывают планировку помещения, учитывая распределение посадочных мест, зонирование (например, зона приема заказов, барная зона, зона приготовления пищи), и обеспечивая рациональное использование пространства. Затем наши менеджеры подбирают оптимальное технологическое оборудование для удачного оснащения.
- Расстановка технологического оборудования. На основе планировки помещения наши специалисты определяют оптимальное размещение оборудования, включая линию раздачи, мебель и кухонное оборудование: пищеварочные котлы, плиты, духовые шкафы, кухонные процессоры, холодильные шкафы, морозильные камеры и т.д.
- Разработка проекта. Мы разрабатываем подробный технологический проект, который включает в себя схемы подключения водоснабжения, вентиляции и коммуникаций. Также наши специалисты предоставят спецификацию оборудования, в которой будут детально описаны все модели оборудования, необходимые для оснащения этой столовой. Мы сотрудничаем только с проверенными производителями, гарантируя высокое качество и надежность оборудования.
- Согласование с заказчиком. Мы обязательно предоставляем заказчику готовый проект столовой и уникальный коммерческий дизайн для ознакомления и внесения изменений, если необходимо.
- Подготовка документации. Мы готовим всю необходимую техническую документацию, включая чертежи, схемы, спецификации и описание систем, которые понадобятся для реализации проекта по комплексному оснащению.
- Поддержка во время реализации. Наши специалисты могут предоставить консультации и поддержку во время строительных и монтажных работ, чтобы убедиться, что проект выполняется согласно разработанным планам.
При проектировании мы учитываем количество посадочных мест, поток клиентов, технологические процессы и требования к оборудованию. Специалисты «Торгового Дизайна» обладают большим опытом в проектировании предприятий питания, что позволяет им предлагать оптимальные проектные решения для столовых.
Особенности проектирования столовой
Технологическое проектирование столовой отличается от проектирования других типов заведений питания, особенно на предприятии. Ниже приведены некоторые ключевые аспекты, на которые мы обращаем внимание по сравнению с другими заведениями:
- Столовые обычно ориентированы на предоставлении как можно большего количества посадочных мест для клиентов. Поэтому наши эксперты стараются эффективно использовать пространство и обеспечить комфорт и удобство для посетителей. Это включает в себя грамотную расстановку столов и стульев и организацию пространства для перемещения гостей.
- При проектировании столовой мы уделяем внимание организации рабочих процессов в кухонной зоне. Грамотное размещение кухонного оборудования и линии раздачи позволяет готовить и обслуживать клиентов более быстро и эффективно.
- Столовым требуются сложные системы вентиляции, водоснабжения и электроснабжения, учитывая объемы приготовления пищи и скорость обслуживания большого количества человек. Специалисты отдела проектирования гарантируют, что водоснабжение, вентиляция и канализация будут обеспечивать бесперебойность и эффективность работы.
- Столовые обычно обслуживают большой поток клиентов в пиковые часы. При проектировании и оснащении мы продумываем, как будет организован прием заказов, обслуживание посетителей и ожидание, чтобы избежать очередей и хаоса.
- Наши специалисты учитывают возможность изменения конфигурации и масштабирования при необходимости. Модульность оборудования и мебели может быть ключевым фактором.
Модернизация столовой
Модернизация любого пространства требует вдумчивого и профессионального подхода, особенно когда речь идет о столовой – месте, которое служит не только для приема пищи, но и в качестве центра общения сотрудников. Именно поэтому каждый этап модернизации имеет решающее значение. Наша команда экспертов предлагает комплексные решения для оснащения и дизайна столовых, сочетая лучшие традиции с современными технологическими решениями.
Мы уделяем внимание каждой детали, начиная от выбора материалов и заканчивая планировкой пространства, чтобы обеспечить максимальный комфорт и удовлетворить потребности каждого сотрудника. Новейшие технологии, применяемые нами, делают столовую не только стильной, но и функциональной.
Эффективная столовая — от идеи до запуска
«Торговый Дизайн» возьмет на себя все заботы по технологическому проектированию столовой, начиная от создания концепции и заканчивая оснащением посудой и оборудованием и запуском систем. Опыт и профессионализм наших сотрудников гарантируют успешное решение всех задач, связанных с созданием и оснащением столовой под ключ.

Выбирая нас, вы получаете надежного партнера, который обеспечит вас всем необходимым для успешного старта и долгосрочной работы. Не упустите возможность создать современное и эффективное предприятие общественного питания с нашей помощью.



























